Hunyadi krt.-on felújított családi ház eladó!

1733 Nyomtatás Ajánlás Facebook

Eladó felújított családi ház Salgótarján "Rózsadombján"!!

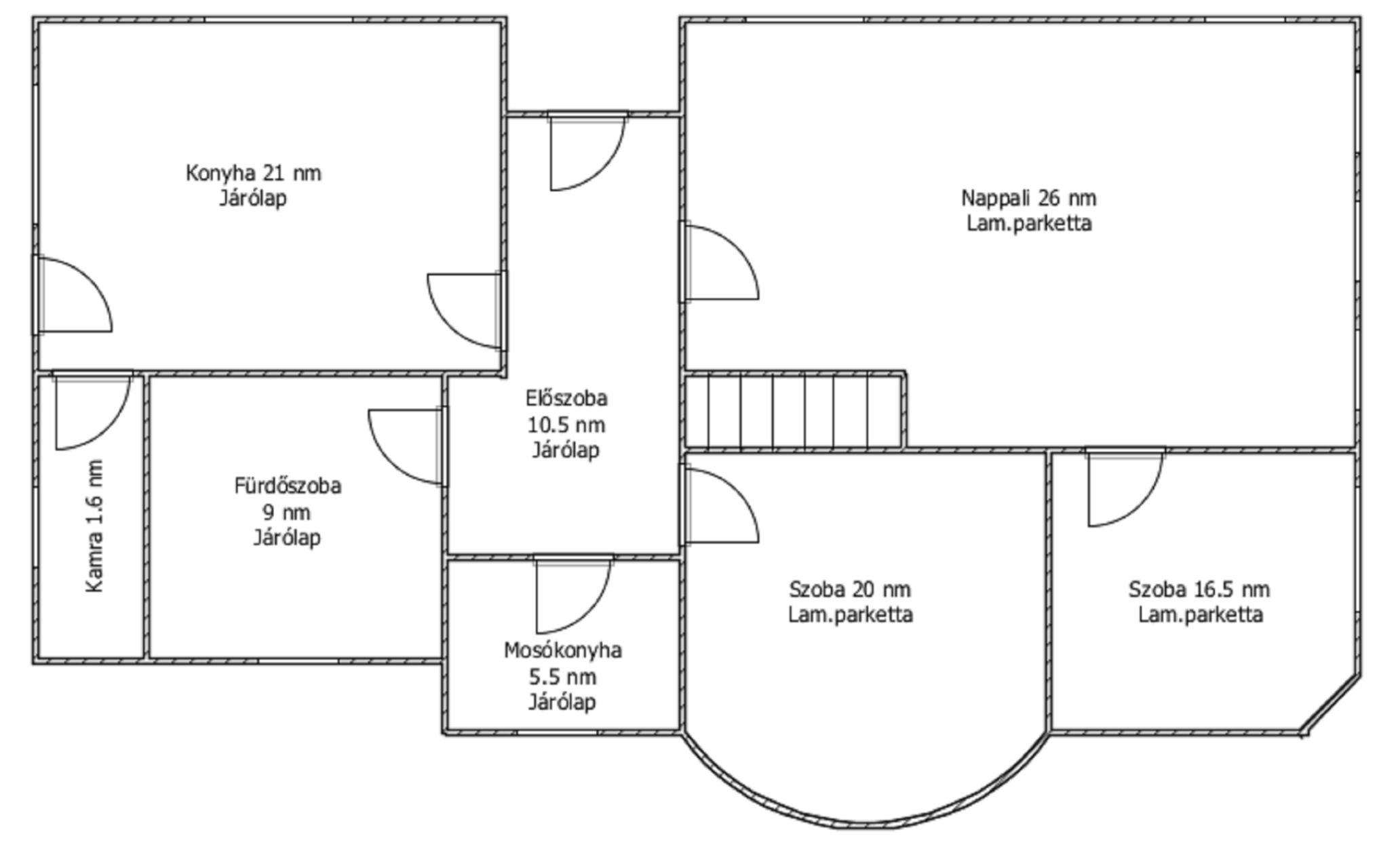
Álmai otthonát keresi? Ne keressen tovább! Eladásra kínálunk egy kivételes, 2020-ban 90 %-os készültségi fokig felújított, 180 nm-es, 2 szintes családi házat, Salgótarján kiemelt lakóövezetében.

Főbb jellemzők:

- Lokáció: Belvárostól 5 perc autóútra, a Hunyadi krt. tetején található. Budai hegyvidéket idéző környezetben.
- Lakótér: nappali+ 4 hálószoba, egyedi konyha prémium anyagokból.
- Fürdőszoba: modern kialakítású, teljesen felszerelt, sarokkáddal és zuhanyzóval (Ravak).
- Komfort: Padlófűtés, új villamos -és vízvezeték hálózat, riasztó rendszer, traventin mészkő párkányok.
- Modern technológia: Három fázisú áram (3X16 A), modern 36 KW-os kombi gázkazán, 3 rétegű, műanyag ablakok.
- Kültér: 1600 nm-es sík, panorámás telek, terasz, udvari gépjárműbeálló, 35 nm-es garázsalap.

Az ingatlan alacsony fenntartási költségekkel rendelkezik, köszönhetően a külső hőszigetelésnek (15 cm) és az energiahatékony megoldásoknak.

A külső homlokzat színezése, a tetőhéjazat cseréje és a tetőtéri lakrész befejezése, az új tulajdonos feladata lesz.

A kiváló közlekedésnek köszönhetően a város bármely pontja könnyen elérhető, miközben a csendes utca nyugalmat biztosít a mindennapokban.

Tatár Tamás
PRÉMIUM

Tatár Tamás

8 éve a Városi Ingatlaniroda tagja
Régióigazgató
Salgótarján
+36 (70) 439 8123
Észrevétel a hirdetéssel kapcsolatban
Egy ingatlanos naplója