Eladó önálló családi ház Őrbottyánban

941 Nyomtatás Ajánlás Facebook

Őrbottyán kedvelt, csendes kertvárosi részén, eladó egy modern, energiatakarékos, új építésű földszintes önálló családi ház.

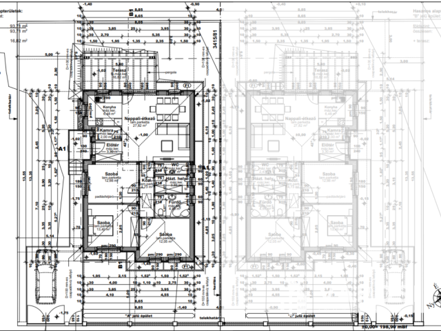
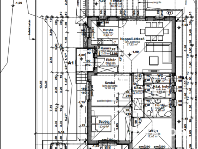
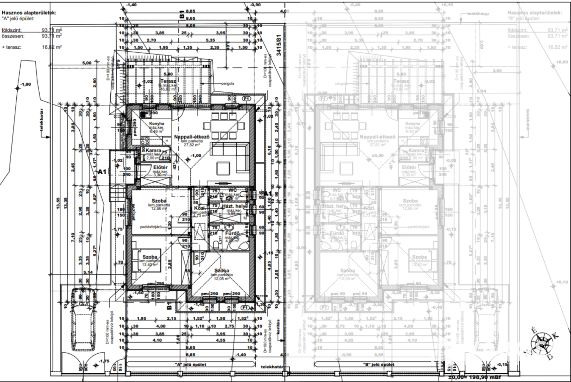
A 94 m² lakóterülettel rendelkező, nappali + 3 hálószobás kialakítású ingatlan egy tágas, jól élhető 385 m²-es saját telken helyezkedik el.

A ház elosztása kiváló: amerikai konyhás nappali szolgál a családi élet központjaként. A nyugodt pihenést három teljes értékű hálószoba biztosítja és emellett kádas fürdőszoba, külön WC, kamra, előszoba és széles közlekedők növelik a komfortérzetet.
A 17 m²-es terasz ideális helyszíne lehet a pihenésnek és a családi összejöveteleknek.

A műszaki tartalom magas színvonalú: 30 cm-es téglafalazat 12 cm hőszigeteléssel, háromrétegű, fehér hőszigetelt nyílászárók, hőszivattyús fűtési rendszer padlófűtéssel, valamint klíma előkészítés biztosítja az alacsony fenntartási költségeket és a korszerű komfortot.
A belső burkolatok és a beltéri ajtók még szabadon választhatók a műszaki tartalomban meghatározott összeghatárig, így az új tulajdonos saját ízlésére formálhatja az otthon hangulatát.

A környék infrastruktúrája kiváló: a vasútállomástól a Nyugati pályaudvar körülbelül 30 perc alatt megközelíthető. A közelben buszmegálló, élelmiszerboltok, pékség, posta, gyógyszertár található, valamint bölcsőde, óvoda, iskola és játszótér is sétatávolságra van, ami különösen ideálissá teszi az ingatlant úgy fiatal, mint idősebb családok számára.

Az ingatlan megvásárlásához kedvezményes finanszírozási lehetőségek elérhetők el, mint az Otthon Start hitel, CSOK stb.
A várható átadás 2025 vége – 2026 tavasza, így még időben lefoglalható és személyre szabható ez a modern, hosszú távra tervezett családi otthon.

Amennyiben a vásárláshoz hitelre van szüksége, bankfüggetlen hiteltanácsadást biztosítunk.
Kérdés vagy megtekintési szándék esetén készséggel állok rendelkezésérea hét bármely napján.

In the popular, quiet garden suburb of Őrbottyán, a modern, energy-efficient, newly built single-storey family house is for sale.

The property with a living area of ​​94 m², a living room + 3 bedrooms is located on a spacious, livable 385 m² private plot.

The distribution of the house is excellent: a living room with an American kitchen serves as the center of family life. Peaceful relaxation is ensured by three full bedrooms, and a bathroom with a bathtub, a separate toilet, a pantry, anteroom and wide corridors increase the feeling of comfort.

The 17 m² terrace can be an ideal place for relaxation and family gatherings.

The technical content is of high quality: 30 cm brickwork with 12 cm thermal insulation, three-layer, white thermally insulated windows and doors, a heat pump heating system with underfloor heating, and air conditioning preparation ensure low maintenance costs and modern comfort.
The interior coverings and interior doors can still be freely chosen up to the amount specified in the technical content, so the new owner can shape the atmosphere of the home to his own taste.

The infrastructure of the area is excellent: the train station can be reached from the Nyugati railway station in about 30 minutes. There is a bus stop, grocery stores, bakery, post office, pharmacy nearby, and a nursery, kindergarten, school and playground are also within walking distance, which makes the property particularly ideal for both young and older families.

Discounted financing options are available for the purchase of the property, such as the Otthon Start loan, CSOK, etc.
The expected handover is the end of 2025 - spring 2026, so this modern, long-term family home can still be reserved and personalized in good time.

If you need a loan for the purchase, we provide bank-independent loan advice.
If you have any questions or would like to view, I am available any day of the week.

Szőcs Viola

Szőcs Viola

Ingatlanértékesítő
Dunakeszi
+36 (30) 401 9689
Észrevétel a hirdetéssel kapcsolatban
Egy ingatlanos naplója